
2014 - 2015
Fields of intervention: interior design
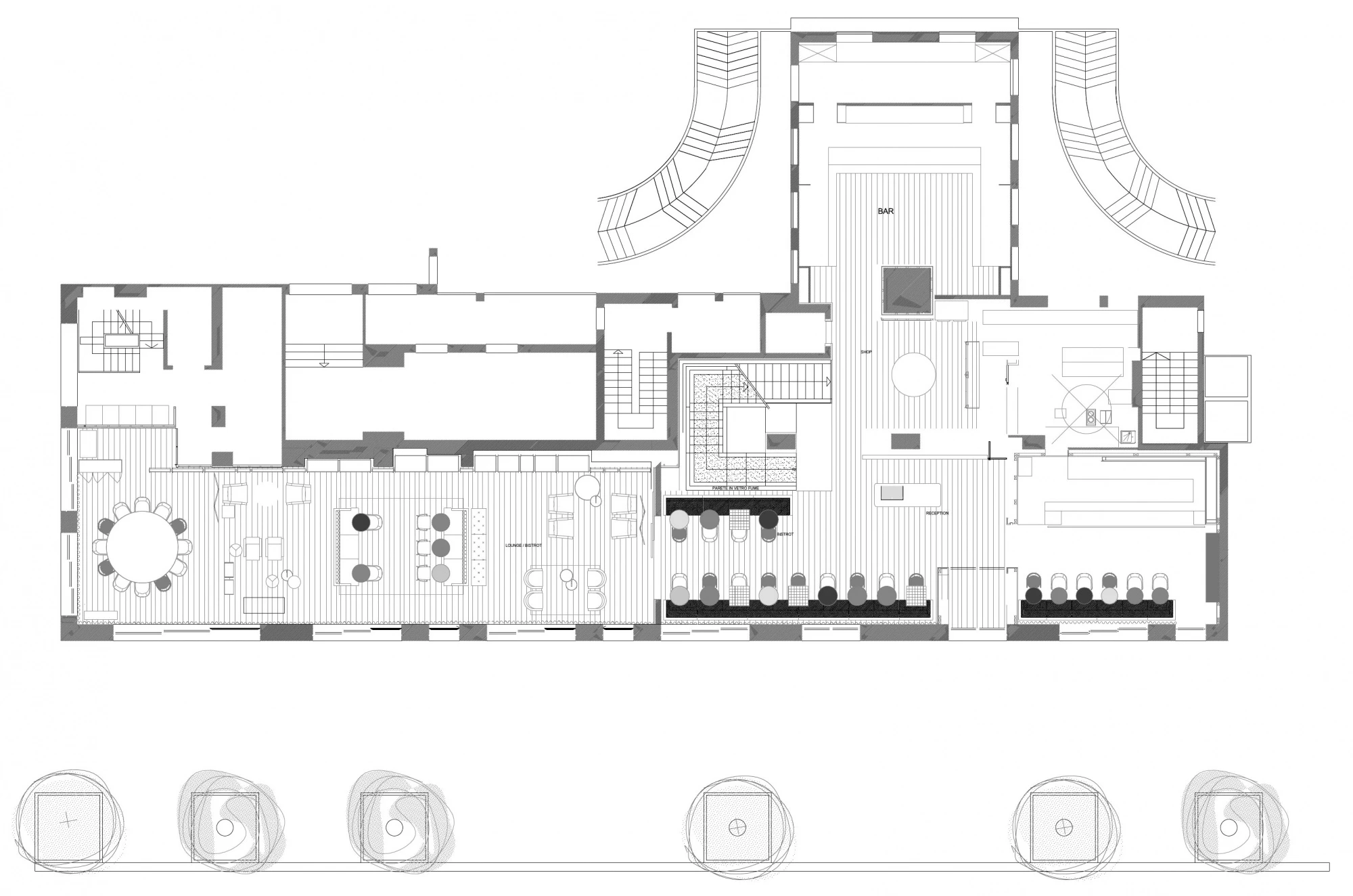
The space extends for 1800 sqm over two floors in a multi-ethnic atmosphere that radiates a Mediterranean air. Guests enter from the beautiful piazza Risorgimento into the luminous Day Bar, the space defined by walls covered in white, hand-made ceramic tiles, large glass windows framing the piazza and a counter clad in volcanic stone featuring white decorative carvings reminiscent of embroidery.
The first floor reveals another space conceived as a series of diverse but fluid areas, devoid of architectural barriers. Warm and enticing areas composed of sofas and armchairs fill the remainder of the lounge up to the restaurant, where 70 seats are distributed around tables of various shapes and sizes. The space concludes with two large round tables illuminated by a pair of Murano glass chandeliers, which can become a private area thanks to a system of sliding doors.
Photographer - Santi Caleca
Web Design / Tommaso Cavallini; Text / Alice Caudera, Laura Cucchi, Donatella Brun; Translation / Richard Peace; Content management / Giorgia Maretta, Laura Presti, Constanza Coscia; Web development / Friweb.
All contents of this website are protected by copyright and may not be reproduced, distributed or transmitted in any form without the prior written permission of Lissoni & Partners.