ANCE - Italy
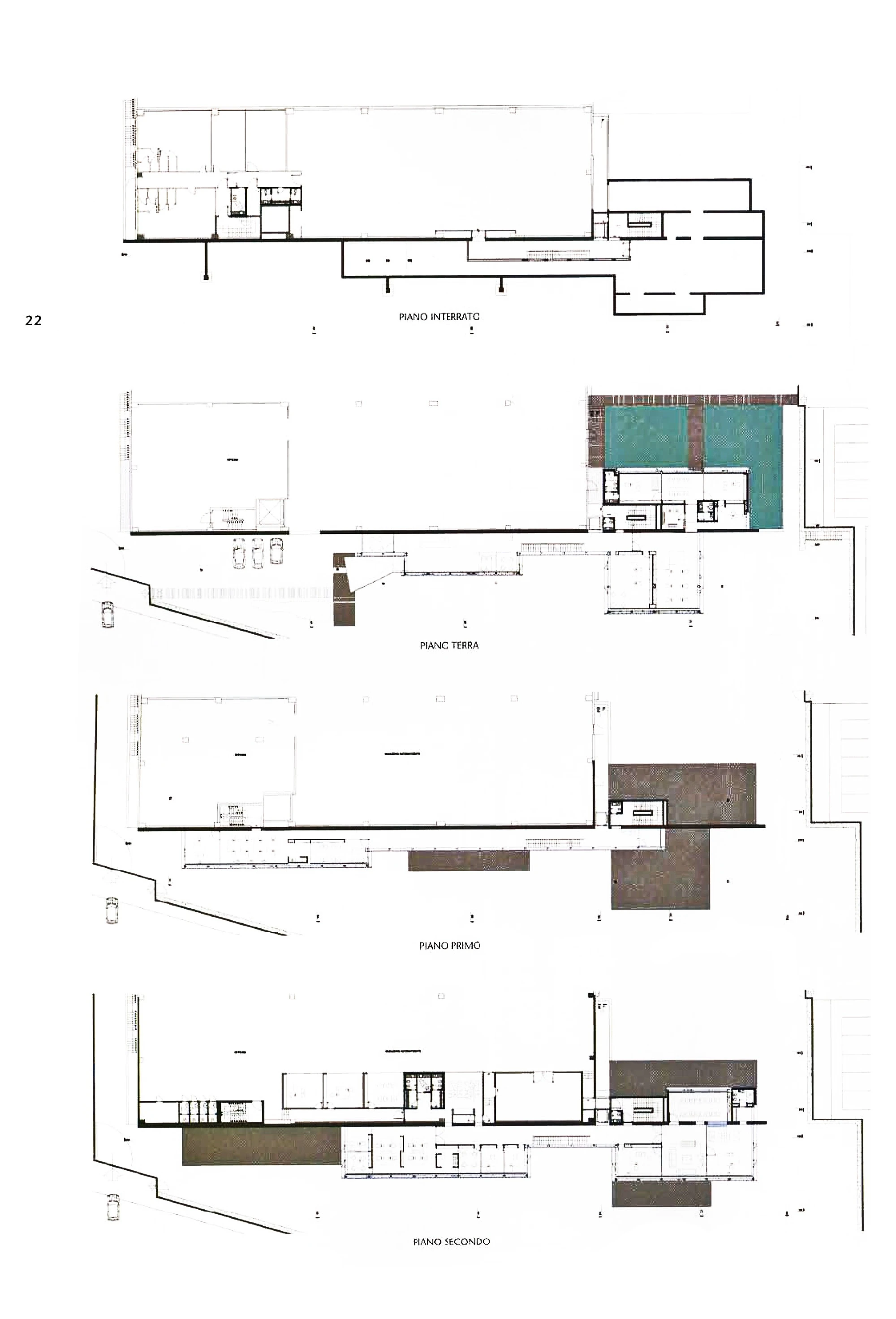
- Matteograssi Headquarters, Giussano

view the project
  • Matteograssi Headquarters
    - Giussano

Web Design / Tommaso Cavallini; Text / Alice Caudera, Laura Cucchi, Donatella Brun; Translation / Richard Peace; Content management / Giorgia Maretta, Laura Presti, Constanza Coscia; Web development / Friweb.
All contents of this website are protected by copyright and may not be reproduced, distributed or transmitted in any form without the prior written permission of Lissoni & Partners.